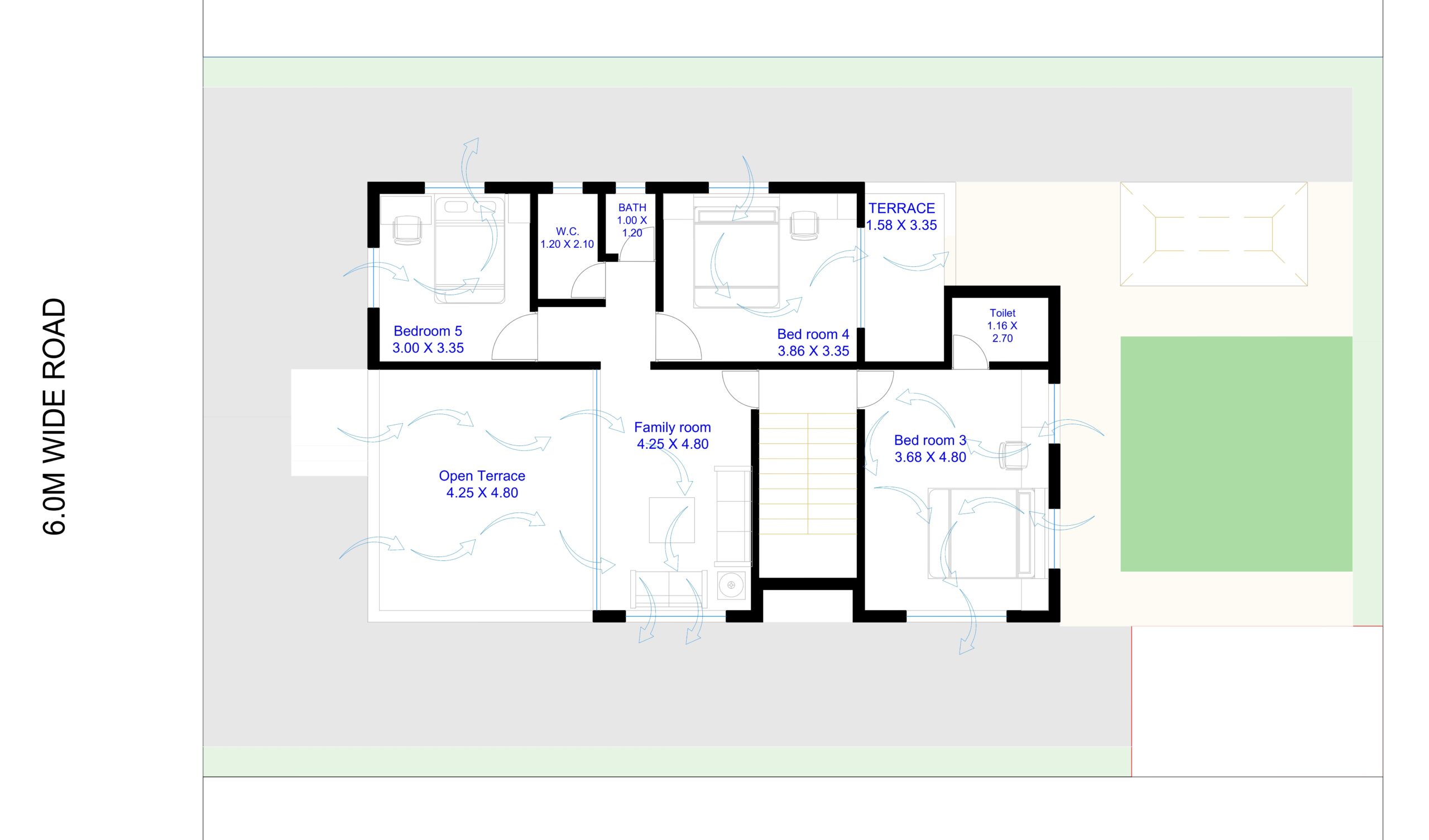
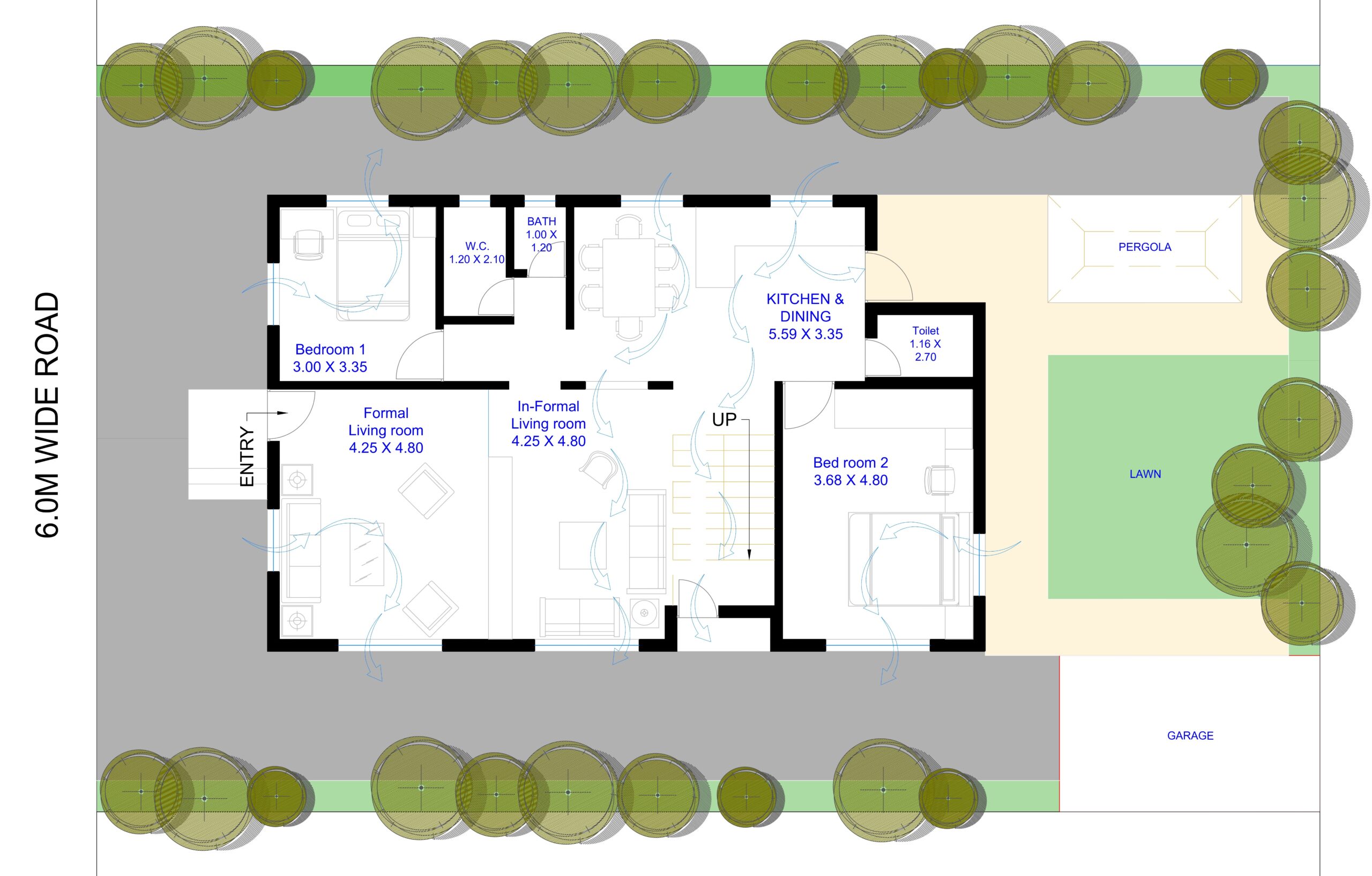
Bungalow Design & Expansion
5,000 sq. ft.,
Architectural Design & Site Development Planning,
Sahakar Nagar, Pune
Prime Associates provided the architectural design for the renovation and vertical expansion of a bungalow at Sahakar Nagar, Pune. The project focused on adding two additional floors above the ground floor, while giving the bungalow a modernistic look and feel.
The design covered approximately 5,000 sq. ft., including site development planning, ensuring that the expanded structure maintained both functionality and aesthetics.