Bungalow Design & PMC

Economical Design, Drawings, Presentation & Project Management Consultancy , Shirur, Pune

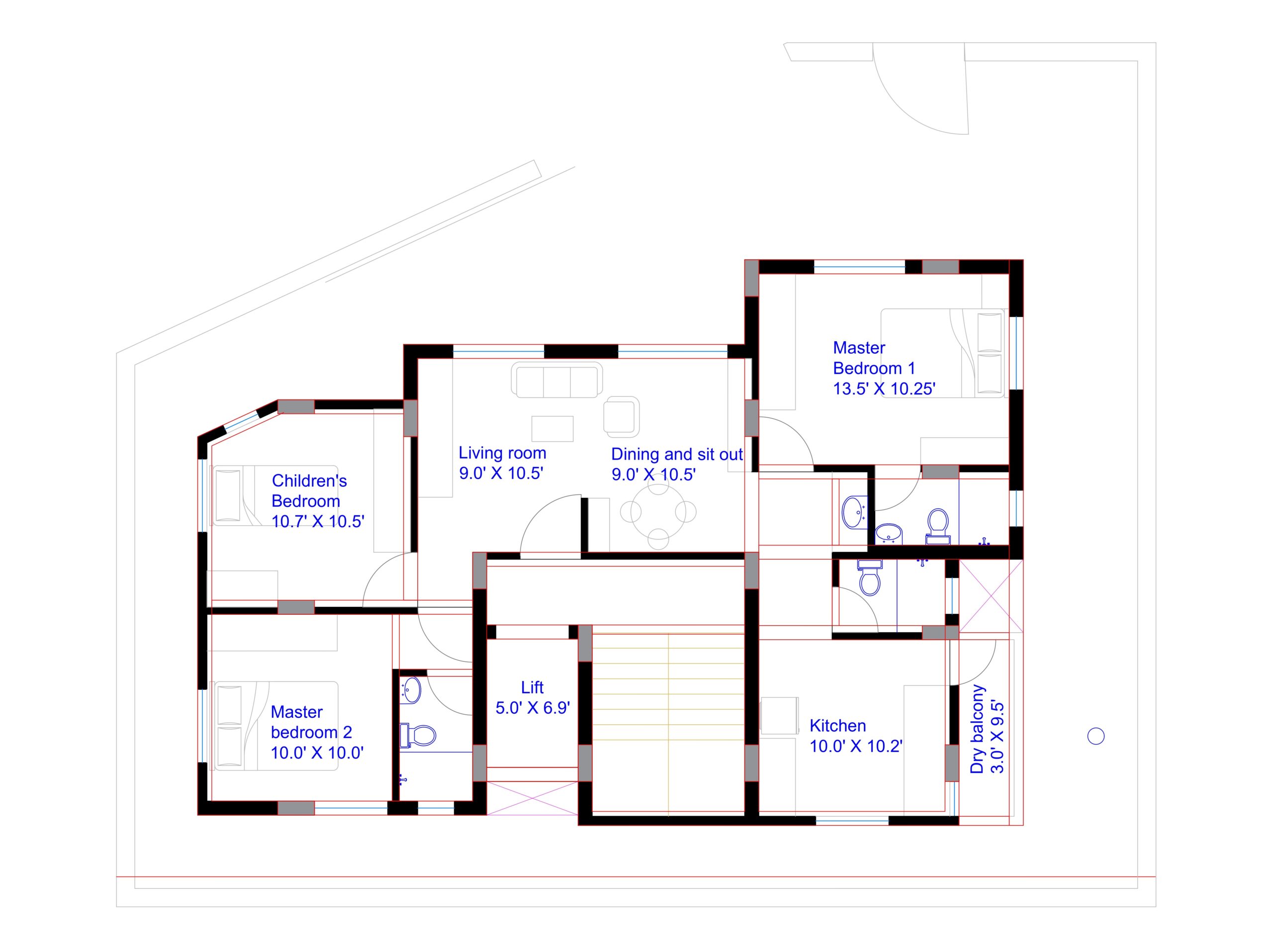
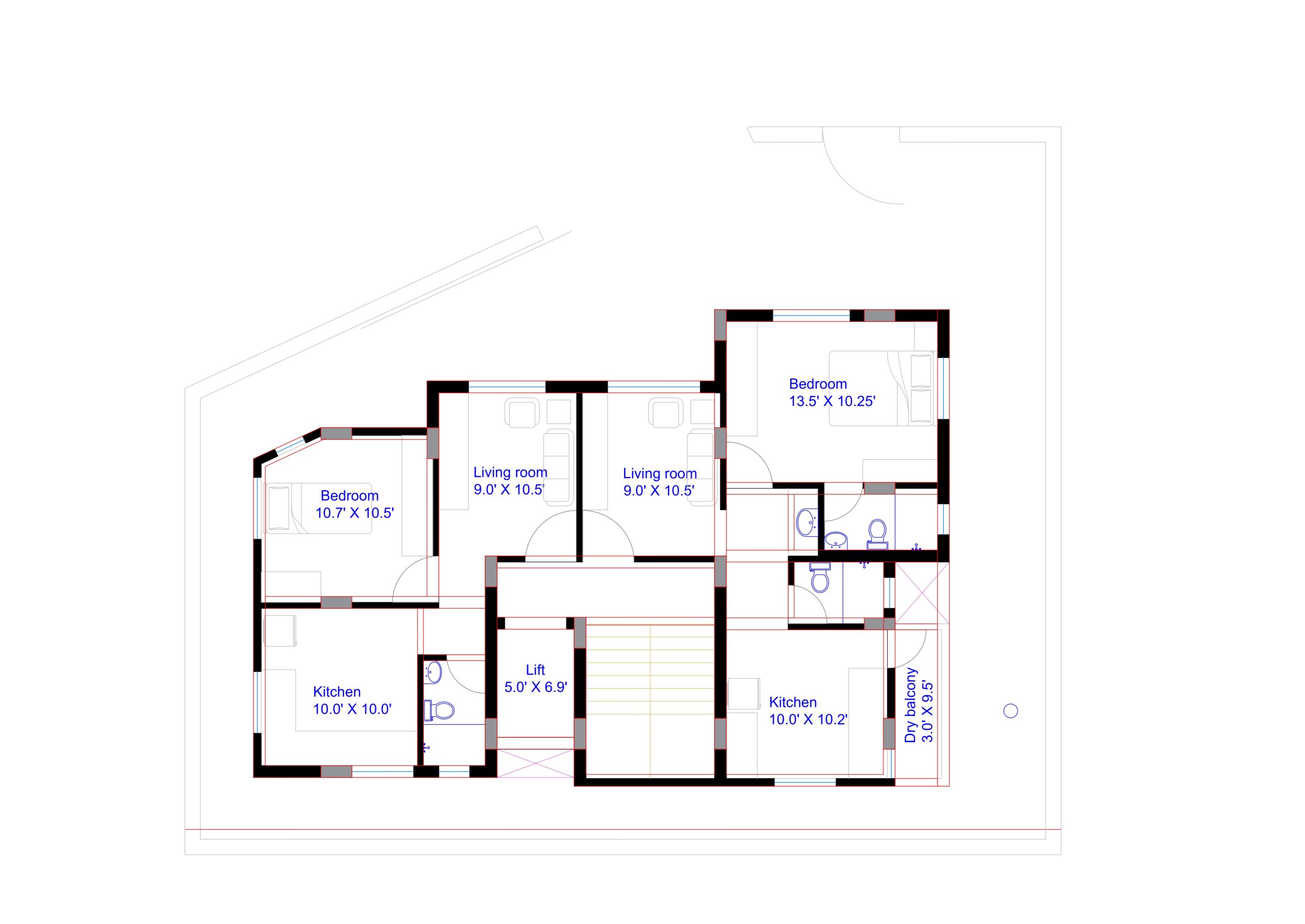
Prime Associates provided design and project management consultancy for a bungalow at Shirur, Pune. The client’s requirement was to achieve an economical design where both construction and ancillary costs were minimized without compromising functionality and aesthetics.

The project involved complete design, drawings, and presentation process, all delivered within less than a month in 2024, ensuring efficiency and cost-effectiveness.