Shanipar Mandir Development

Design Development (Mandir Layout, Store & Sitting Space Integration), Shanipar, Pune

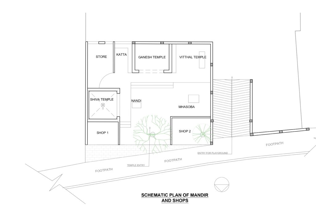
Prime Associates undertook the design development of a temple complex at Shanipar, Pune, addressing the client’s highly specific and complex requirements. The project involved designing three distinct mandirs – with Lord Ganesh at the center, flanked by Lord Shiva and Lord Vithal on either side.

Additionally, the design incorporated a store and sitting space, ensuring functionality without compromising on the sanctity and aesthetics of the temple. Despite the challenges, the project was executed with creativity and precision, finding effective solutions to complex spatial requirements.